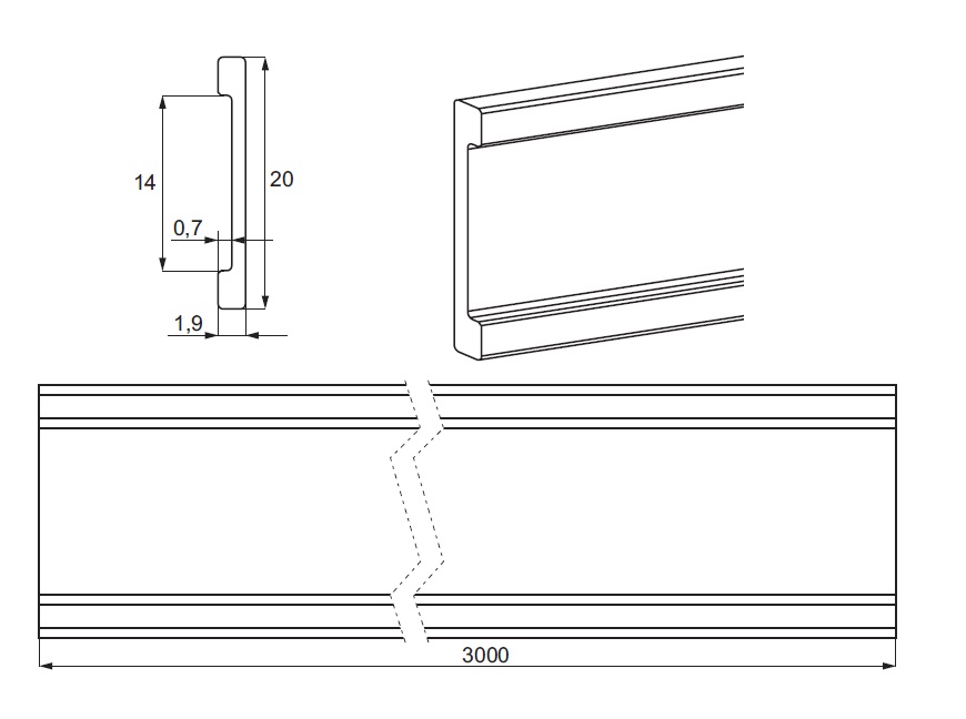
Flat Aluminium Bar w/Groove,3000x20x1,9mm, Black Anodized

Item number: 15.22.530-2