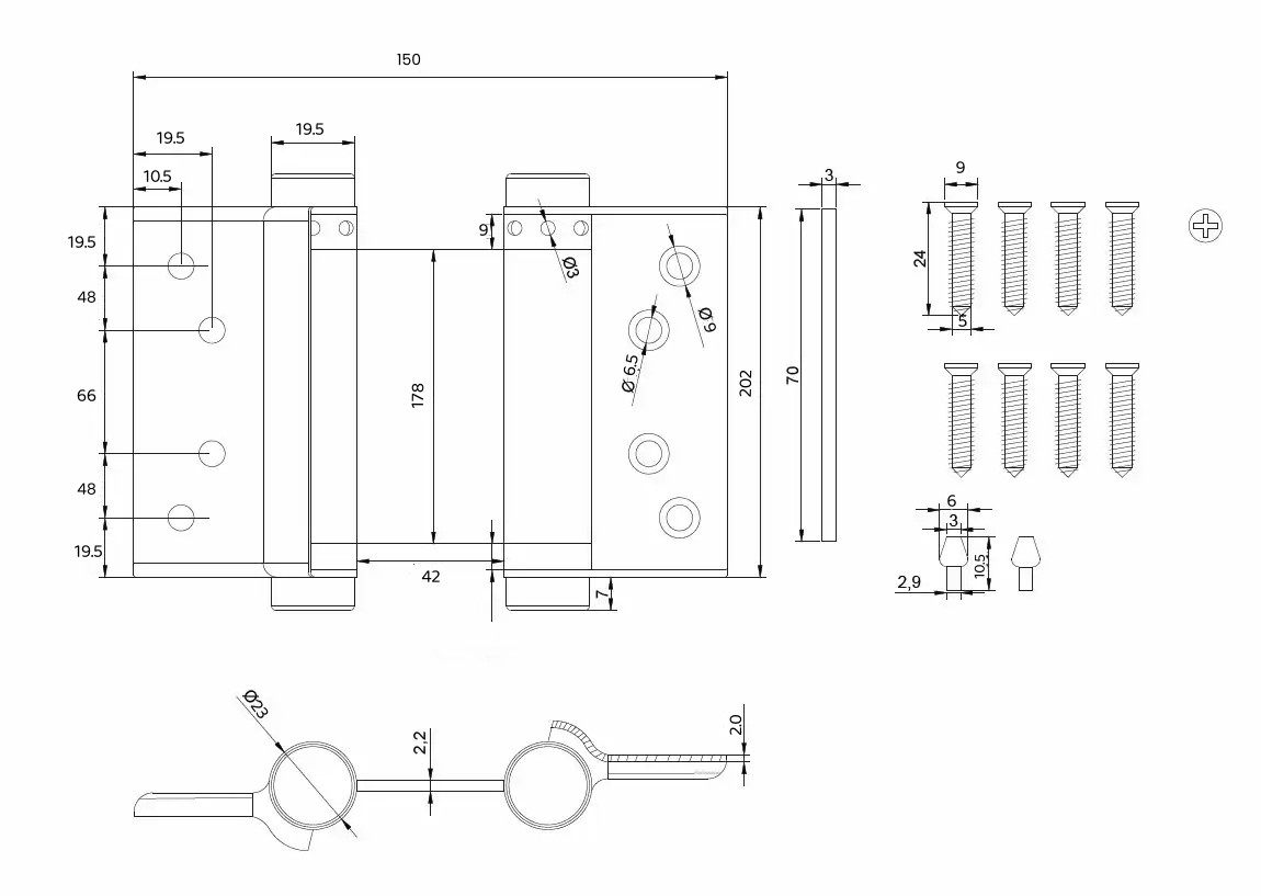
Saloon Door Double Action Spring Hinge, 202mm, SS304 Brushed For Door Thickness 28 to 36 mm, Max Door Weight 30KG

Item number: 15.20.124-0